Terreno com 6.000 m2 de área total; Suissa, Ribeirão Pires/S
Rua Antônio MathiasSuíssa, Ribeirão Pires - SP

Informações
- Em Condomínio
- Condomínio: Condominio Reserva da Mata
- Aceita FinanciamentoSimular Financimento
Medidas
- Área Total: 6.000 m² (R$ 367/m²)
- Terreno Área Total: 6.000 m²
Descrição
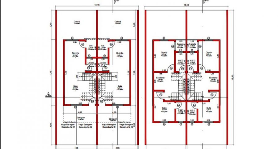
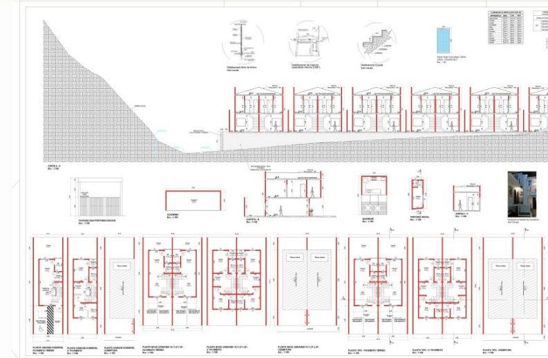
Terreno com 6.000 m2 de área total; Vila Nova Suissa Santista, Ribeirão Pires/SP; Terreno com projeto aprovado e ja averbado na matrícula para construção de 28 Casas; É possivel alterar projeto para constrtução de Galpão; Empresa SPE constituída; A localização do Terreno é zona Residencial, Comercial e/ou Industrial; Local com déficit de moradias. Documentação 100% em ordem. Solicite mais informações e/ou agende atendimento presencial no local com Corretor especializado.


